Xây dựng một ngôi nhà là hành trình quan trọng nhất của đời người. Tại khu vực miền Nam, đặc biệt là các thủ phủ công nghiệp như Bình Dương, bạn phải nắm bắt được chi phí xây nhà phố 2 tầng 80m2 chính xác. Giúp chủ đầu tư chủ động tài chính và tránh các rủi ro phát sinh không đáng có. Bài viết này sẽ phân tích chi tiết dựa trên đơn giá vật tư và nhân công cập nhật mới nhất 2026.
Cách tính diện tích xây dựng nhà phố 2 tầng 80m2
Trong ngành xây dựng, diện tích tính tiền không chỉ là 80m2 x 2. Để có dự toán xây dựng nhà phố chuẩn, chúng ta cần tính theo tổng diện tích sàn xây dựng (đã bao gồm hệ số móng, mái và ban công):
-
Móng (Móng cọc/Móng băng): Tính 30% – 50% diện tích (24m2 – 40m2).
-
Tầng 1 (Trệt): Tính 100% diện tích (80m2).
-
Tầng 2 (Lầu 1): Tính 100% diện tích (80m2).
-
Mái (Mái bê tông cốt thép/Mái tôn): Tính 30% – 70% diện tích (24m2 – 56m2).
-
Tổng diện tích xây dựng (DTXD): Dao động từ 210m2 đến 250m2 tùy loại móng và mái.


>>> Xem thêm >>> Chi phí xin phép xây dựng nhà 2 tầng 2026 cập nhật mới nhất
Đơn giá xây dựng nhà phố 2 tầng năm 2026
Thị trường xây dựng miền Nam năm 2026 ghi nhận mức biến động nhẹ do chi phí nhân công chất lượng cao tăng và yêu cầu về vật liệu xanh (bền vững) trở thành tiêu chuẩn.
Đơn giá xây thô và nhân công hoàn thiện
Đây là gói dành cho chủ nhà muốn tự tay chọn vật tư hoàn thiện (gạch, sơn, thiết bị vệ sinh).
-
Đơn giá: 3.900.000 – 4.200.000 VNĐ/m2.
-
Chi phí xây thô nhà 2 tầng 80m2: Dự kiến từ 800.000.000 – 950.000.000 VNĐ.
Đơn giá xây nhà trọn gói (Chìa khóa trao tay)
Gói này phù hợp với những người bận rộn, cần sự đồng bộ và bảo hành từ một đơn vị duy nhất.
-
Gói tiết kiệm: 5.050.000 – 6.450.000 VNĐ/m2.
-
Gói khá/cao cấp: 5.850.000 – 7.050.000 VNĐ/m2.
Phân tích giá vật liệu 2026
Năm 2026, giá vật liệu xây dựng 2026 tại khu vực Bình Dương và TP.HCM có sự phân hóa:
-
Thép: Ổn định ở mức 15.500 – 17.000 VNĐ/kg nhờ nguồn cung nội địa dồi dào.
-
Bê tông tươi: Tăng khoảng 5% so với năm ngoái do chi phí vận chuyển và kiểm soát khí thải.
-
Vật liệu hoàn thiện: Các dòng gạch khổ lớn và đá nhân tạo đang chiếm ưu thế với mức giá cạnh tranh hơn so với hàng nhập khẩu.
Bảng dự toán chi phí xây nhà phố 2 tầng 80m2
Dưới đây là bảng dự toán chi tiết cho mẫu nhà phố 2 tầng 80m2 (5x16m), tổng diện tích sàn xây dựng tạm tính là 240m2 (bao gồm móng và mái) tại khu vực Bình Dương/Miền Nam năm 2026.
A. Phần thô và nhân công hoàn thiện (Chiếm ~65% ngân sách)
Đây là phần cốt lõi đảm bảo độ bền trên 50 năm cho công trình.
| STT | Loại vật tư / Hạng mục | Thương hiệu chỉ định (EEAT) | Thành tiền (Ước tính) |
| 1 | Thép xây dựng | Việt Nhật (Vinakyoei) / Pomina | 165.000.000 |
| 2 | Xi măng | Hà Tiên (đa dụng) / Insee | 85.000.000 |
| 3 | Gạch tuynel | Bình Dương / Thành Tâm | 55.000.000 |
| 4 | Cát, đá, bê tông tươi | Cát vàng, đá xanh 1×2 Bình Dương | 95.000.000 |
| 5 | Hệ thống ống nước | Bình Minh (PPR cho nước nóng) | 35.000.000 |
| 6 | Dây điện & thiết bị âm | Cadivi / Ống luồn Panasonic | 40.000.000 |
| 7 | Nhân công xây dựng | Trọn gói từ móng đến mái | 380.000.000 |
| Cộng phần thô | 855.000.000 |
B. Phần vật tư hoàn thiện (Chiếm ~35% ngân sách)
Phần này gia chủ có thể điều chỉnh tùy theo gu thẩm mỹ và tài chính.
| STT | Hạng mục hoàn thiện | Quy cách / Thương hiệu | Thành tiền (Ước tính) |
| 1 | Gạch ốp lát (80×80) | Eurotile / Ý Mỹ / Taicera | 110.000.000 |
| 2 | Thiết bị vệ sinh | TOTO / Inax (Dòng trung cấp) | 65.000.000 |
| 3 | Hệ thống cửa | Nhôm Xingfa nhập khẩu, kính cường lực | 95.000.000 |
| 4 | Sơn nước (Trong & Ngoài) | Jotun Jotashield / Dulux 5 in 1 | 55.000.000 |
| 5 | Đá Granite cầu thang | Kim sa trung / Đá trắng Ấn Độ | 45.000.000 |
| 6 | Trần thạch cao | Khung xương Vĩnh Tường | 35.000.000 |
| 7 | Đèn chiếu sáng & Trang trí | Panasonic / Philips | 30.000.000 |
| Cộng phần hoàn thiện | 435.000.000 |
C. Tổng hợp chi phí đầu tư
| Hạng mục | Chi phí (VNĐ) |
| 1. Chi phí xây dựng trọn gói (Thô + Hoàn thiện) | 1.290.000.000 |
| 2. Nội thất rời cơ bản (Bếp, giường, tủ) | 180.000.000 |
| 3. Chi phí dự phòng phát sinh (5%) | 73.500.000 |
| TỔNG CỘNG ĐẦU TƯ | 1.543.500.000 |
Lưu ý: Con số trên mang tính chất tham khảo. Chi phí thực tế có thể thay đổi tùy thuộc vào vị trí hẻm nhỏ hay mặt tiền và yêu cầu thẩm mỹ riêng của gia chủ.
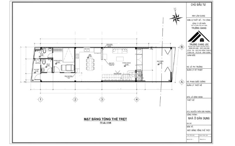
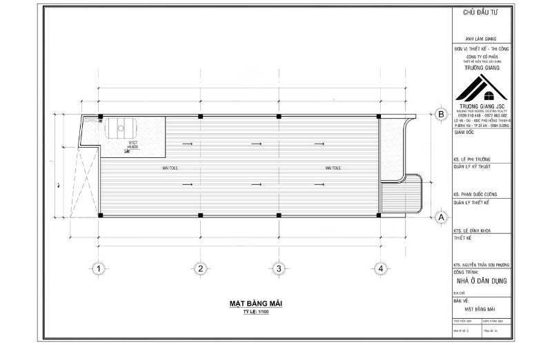
Gợi ý mẫu nhà ống 5x16m 2 tầng đẹp và tối ưu công năng
Với diện tích 5x16m, việc thiết kế cần ưu tiên sự thông thoáng và ánh sáng tự nhiên. Đây là mẫu nhà 80m2 đẹp được ưa chuộng nhất 2026:
-
Tầng 1: Sân trước (để xe) -> Phòng khách -> Cầu thang kết hợp giếng trời -> Bếp & Phòng ăn -> 01 Phòng ngủ nhỏ cho người già/khách -> Sân sau (WC & khu giặt phơi).
-
Tầng 2: 02 Phòng ngủ lớn (Master) có WC riêng -> Phòng thờ (hoặc không gian làm việc) -> Ban công rộng phía trước.



>>> Xem thêm >>> 50+ Các bản vẽ thiết kế nhà 2 tầng đẹp – Miễn phí thiết kế
Tại sao nên chọn xây nhà phố trọn gói 80m2 tại Bình Dương?
Việc lựa chọn đơn vị thi công uy tín tại địa phương mang lại những lợi thế về mặt:
-
Am hiểu địa chất: Bình Dương có nhiều khu vực đất cứng nhưng cũng có vùng đất yếu, cần kỹ thuật xử lý móng chuyên biệt.
-
Pháp lý nhanh chóng: Đơn vị bản địa thường thông thạo các thủ tục xin phép xây dựng và hoàn công tại các khu vực như Dĩ An, Thuận An, Thủ Dầu Một.
-
Hỗ trợ bảo trì: Khoảng cách địa lý gần giúp việc bảo hành 10 năm phần kết cấu được thực hiện kịp thời.
Việc chuẩn bị ngân sách khoảng 1.4 đến 1.7 tỷ đồng là mức an toàn để sở hữu một căn nhà phố 2 tầng 80m2 hiện đại, đầy đủ tiện nghi vào năm 2026. Để có bảng tính chi tiết nhất dựa trên nhu cầu thực tế của mình, bạn nên làm việc trực tiếp với kiến trúc sư để có phương án tối ưu công năng nhất. Hãy liên hệ đến Hotline: 0969.069.488 để được tư vấn và báo giá miễn phí
CÔNG TY CỔ PHẦN THIẾT KẾ KIẾN TRÚC XÂY DỰNG TRƯỜNG GIANG
Xưởng nội thất: 379 Nguyễn Văn Tiên – P.Trảng Dài – TP. Biên Hòa – Đồng Nai.
Hotline: 0969.069.488
